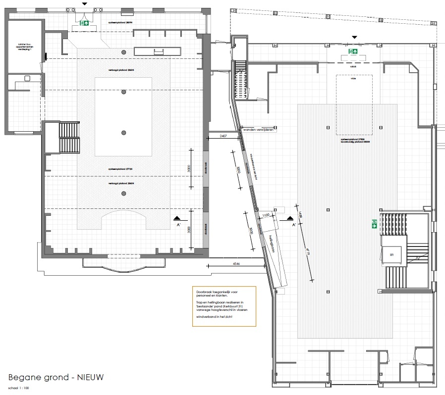
Masterplan verbouwing damesmode Verschoor Sliedrecht

De combinatie van 20 jaar retail-ervaring in de mode en interieurontwerp waren de ideale mix voor het ontwerpen van een masterplan. Een ontzettend mooie opdracht die ik samen met collega Emmeken van StudioEmm heb uitgevoerd. Voorop stond een doorbraak tussen de twee panden die beide op een andere manier gebouwd zijn en waarvan het tweede pand later aangekocht is. Aanvullend een ontwerp voor de modernisering van 2 winkelvloeren met de invulling van een klein horeca concept. Door onze samenwerking met een aannemer, bouwbegeleider, tekenaar en 3D designer konden we onze klant hierin in alles ontzorgen en waren wij voor haar het aanspreekpunt. We zorgden voor een bouwkundige opzet en ontwierpen voor beide winkelvloeren vlekkenplannen, moods, materialisatie, capaciteitscheck, interieurdelen en visualisaties. Alles verwerkt in een masterplan zodat de klant kan bepalen wanneer het plan (in delen) gerealiseerd kan worden.








Ook voor een groter project kan ik in samenwerking met mijn collega een geslaagd ontwerp maken.